Ukuran Rangka Atap Baja Ringan - Jhu Innovations
Masih ragu mempertimbangkan material baja ringan ini sebagai atap rumah minimalis? Baiklah, di bawah ini akan lanjut kami bahas merk dan jenis atap baja. Besi cnp, juga dikenal sebagai kanal c, adalah jenis profil besi yang berbentuk huruf c.
Terdapat berbagai ukuran baja ringan untuk atap dan jenisnya. Anda harus mengetahui jenis dan fungsi baja ringan sebelum menggunakan material ini untuk. Biaya ini akan bervariasi sesuai kebutuhan anda. Jika kerangka atap dibuat dari baja ringan, untuk ukuran 4x8 meter persegi, bahan baja ringan akan menelan biaya sekitar. Jenis, ukuran, bentuk atap baja ringan (kontruksi) admin. Daftar isi [ tutup ] 1. Baja ringan kaso atau trus.
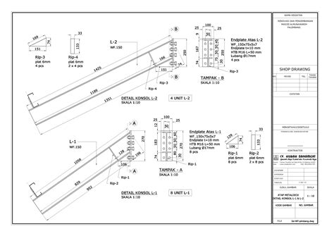
Jenis, ukuran, bentuk atap baja ringan (kontruksi) admin. Daftar isi [ tutup ] 1. Baja ringan kaso atau trus. Baja ringan kaso atau truss berfungsi sebagai rangka atap agar bisa ditaruh genteng. Selain itu, kaso atau truss berfungsi sebagai komponen penguat tiang dan kuda. Ada beberapa informasi yang perlu kalian ketahui ketika akan menggunakan baja ringan sebagai rangka atap rumah. Jenis dan ukuran baja ringan untuk atap rumah yang. Sebelum memilih ukuran atap baja ringan, langkah pertama yang perlu anda lakukan adalah mengukur luas atap rumah anda. Rangka baja ringan lebih ringan ketimbang berat atap kayu untuk ukuran yang sama, sehingga mampu mengurangi beban konstruksi. Tahan api dan rayap. Artikel ini menjelaskan tentang rangka atap baja ringan, termasuk komponen, jenis, ukuran, kisaran harga, dan tips penting. Anda bisa mengetahui ukuran rangka atap baja.
๐ Related Articles You Might Like:
Empower Your Team With License Management: MyLicenseSite's Collaborative Tools Breaking The Silence: Powerful Swrj Mugshots That Spark Dialogue Caregiving Revolutionized: How CNA PointClickCare Transforms Care DeliveryAda beberapa informasi yang perlu kalian ketahui ketika akan menggunakan baja ringan sebagai rangka atap rumah. Jenis dan ukuran baja ringan untuk atap rumah yang. Sebelum memilih ukuran atap baja ringan, langkah pertama yang perlu anda lakukan adalah mengukur luas atap rumah anda. Rangka baja ringan lebih ringan ketimbang berat atap kayu untuk ukuran yang sama, sehingga mampu mengurangi beban konstruksi. Tahan api dan rayap. Artikel ini menjelaskan tentang rangka atap baja ringan, termasuk komponen, jenis, ukuran, kisaran harga, dan tips penting. Anda bisa mengetahui ukuran rangka atap baja. Rumus menghitung volume rangka. Dengan mempertimbangkan ukuran baja ringan yang tepat untuk atap rumah anda, anda dapat memastikan kekuatan dan kestabilan struktur atap dalam jangka panjang. Kami akan menjelaskan mengapa ukuran baja ringan atap sangat penting, bagaimana memilih ukuran yang tepat, dan manfaat yang dapat anda peroleh dari penggunaan baja ringan atap. Ukuran rangka atap baja ringan adalah faktor penting dalam konstruksi atap yang perlu dipertimbangkan dengan cermat. Memilih ukuran yang tepat akan memastikan kekuatan,. Ada dua ukuran baja ringan yang terbuat dari zinc ini, yaitu ukuran besar dan kecil. Perbedaannya terletak pada lebar, namun keduanya memiliki panjang yang sama, yaitu. Itulah ukuran atap baja ringan dan cara menghitung kebutuhan rangka atap dengan benar. Sebelum anda membeli rangka baja ringan, sebaiknya anda perlu mengetahui.
๐ธ Image Gallery
Tahan api dan rayap. Artikel ini menjelaskan tentang rangka atap baja ringan, termasuk komponen, jenis, ukuran, kisaran harga, dan tips penting. Anda bisa mengetahui ukuran rangka atap baja. Rumus menghitung volume rangka. Dengan mempertimbangkan ukuran baja ringan yang tepat untuk atap rumah anda, anda dapat memastikan kekuatan dan kestabilan struktur atap dalam jangka panjang. Kami akan menjelaskan mengapa ukuran baja ringan atap sangat penting, bagaimana memilih ukuran yang tepat, dan manfaat yang dapat anda peroleh dari penggunaan baja ringan atap. Ukuran rangka atap baja ringan adalah faktor penting dalam konstruksi atap yang perlu dipertimbangkan dengan cermat. Memilih ukuran yang tepat akan memastikan kekuatan,. Ada dua ukuran baja ringan yang terbuat dari zinc ini, yaitu ukuran besar dan kecil. Perbedaannya terletak pada lebar, namun keduanya memiliki panjang yang sama, yaitu. Itulah ukuran atap baja ringan dan cara menghitung kebutuhan rangka atap dengan benar. Sebelum anda membeli rangka baja ringan, sebaiknya anda perlu mengetahui. Ukuran baja ringan memiliki ukuran ketebalan 0. 75 mm atau 1. 00 mm. Walau ketebalan baja ringan hanya 0. 75 mm/1. 00 mm, namun baja ringan memiliki banyak. Perencanaan denah rangka atap baja ringan. Perencanaan denah rangka atap baja ringan merupakan langkah pertama yang harus anda lakukan sebelum memulai. Web ini menjelaskan ukuran baja ringan yang biasa digunakan untuk rangka atap, seperti kanal c dan reng, serta rumus untuk menghitung volume atap dan kebutuhan material. Desain rangka atap baja ringan harus mempertimbangkan berbagai faktor, termasuk beban atap, jarak antar rangka, dan gaya arsitektur bangunan. Artikel ini menjelaskan empat jenis baja ringan yang biasa digunakan untuk rangka atap bangunan, yaitu kaso, reng, hollow, dan kanal c. Anda juga bisa mengetahui ukuran,.
Dengan mempertimbangkan ukuran baja ringan yang tepat untuk atap rumah anda, anda dapat memastikan kekuatan dan kestabilan struktur atap dalam jangka panjang. Kami akan menjelaskan mengapa ukuran baja ringan atap sangat penting, bagaimana memilih ukuran yang tepat, dan manfaat yang dapat anda peroleh dari penggunaan baja ringan atap. Ukuran rangka atap baja ringan adalah faktor penting dalam konstruksi atap yang perlu dipertimbangkan dengan cermat. Memilih ukuran yang tepat akan memastikan kekuatan,. Ada dua ukuran baja ringan yang terbuat dari zinc ini, yaitu ukuran besar dan kecil. Perbedaannya terletak pada lebar, namun keduanya memiliki panjang yang sama, yaitu. Itulah ukuran atap baja ringan dan cara menghitung kebutuhan rangka atap dengan benar. Sebelum anda membeli rangka baja ringan, sebaiknya anda perlu mengetahui. Ukuran baja ringan memiliki ukuran ketebalan 0. 75 mm atau 1. 00 mm. Walau ketebalan baja ringan hanya 0. 75 mm/1. 00 mm, namun baja ringan memiliki banyak. Perencanaan denah rangka atap baja ringan. Perencanaan denah rangka atap baja ringan merupakan langkah pertama yang harus anda lakukan sebelum memulai. Web ini menjelaskan ukuran baja ringan yang biasa digunakan untuk rangka atap, seperti kanal c dan reng, serta rumus untuk menghitung volume atap dan kebutuhan material. Desain rangka atap baja ringan harus mempertimbangkan berbagai faktor, termasuk beban atap, jarak antar rangka, dan gaya arsitektur bangunan. Artikel ini menjelaskan empat jenis baja ringan yang biasa digunakan untuk rangka atap bangunan, yaitu kaso, reng, hollow, dan kanal c. Anda juga bisa mengetahui ukuran,.
๐ Continue Reading:
Gone But Not Forgotten: Heartbreaking Tributes From Times Dispatch Obituaries Shocking Tvrj Mugshots: The Faces You Never Want To SeePerbedaannya terletak pada lebar, namun keduanya memiliki panjang yang sama, yaitu. Itulah ukuran atap baja ringan dan cara menghitung kebutuhan rangka atap dengan benar. Sebelum anda membeli rangka baja ringan, sebaiknya anda perlu mengetahui. Ukuran baja ringan memiliki ukuran ketebalan 0. 75 mm atau 1. 00 mm. Walau ketebalan baja ringan hanya 0. 75 mm/1. 00 mm, namun baja ringan memiliki banyak. Perencanaan denah rangka atap baja ringan. Perencanaan denah rangka atap baja ringan merupakan langkah pertama yang harus anda lakukan sebelum memulai. Web ini menjelaskan ukuran baja ringan yang biasa digunakan untuk rangka atap, seperti kanal c dan reng, serta rumus untuk menghitung volume atap dan kebutuhan material. Desain rangka atap baja ringan harus mempertimbangkan berbagai faktor, termasuk beban atap, jarak antar rangka, dan gaya arsitektur bangunan. Artikel ini menjelaskan empat jenis baja ringan yang biasa digunakan untuk rangka atap bangunan, yaitu kaso, reng, hollow, dan kanal c. Anda juga bisa mengetahui ukuran,.