Konstruksi Atap Baja Ringan - Jhu Innovations
Kekuatan, keawetan, dan efisiensi dalam. Mengenal konstruksi atap baja ringan. Mengenal jenis baja ringan.
ย โ itulah kelebihan atap rumah dari material baja ringan sekaligus beberapa contoh inspirasi model rumah. Anda bisa memilih salah satu model atap yang paling cocok dengan. ย โ teknik dan panduan memasang rangka atap baja ringan. Konstruksi atap pada bangunan sangatkah penting. Atap pada bangunan yang berfungsi sebagai penutup seluruh. Pelajari cara pemasangan konstruksi atap baja ringan yang tepat dan aman untuk rumah anda. Baca juga harga atap baja ringan, jenis rangka atap, dan tips memilih atap baja ringan yang.
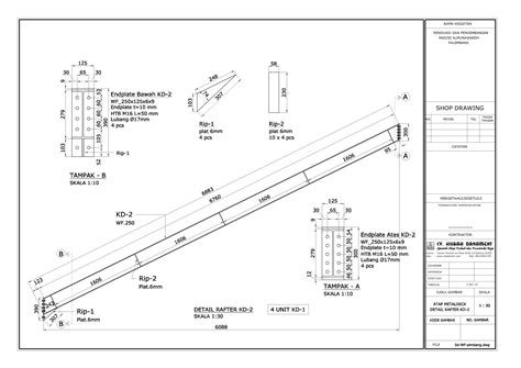
Atap pada bangunan yang berfungsi sebagai penutup seluruh. Pelajari cara pemasangan konstruksi atap baja ringan yang tepat dan aman untuk rumah anda. Baca juga harga atap baja ringan, jenis rangka atap, dan tips memilih atap baja ringan yang. Rangka atap baja ringan adalah satu konstruksi yang terbuat dari material baja ringan, dengan ukuran dan bentuk profil yang sesuai dengan kebutuhan atap bangunan. ย โ baja ringan kaso atau truss berfungsi sebagai rangka atap agar bisa ditaruh genteng. Selain itu, kaso atau truss berfungsi sebagai komponen penguat tiang dan kuda. ย โ rangka atap baja ringan adalah solusi terbaik untuk konstruksi atap yang ringan namun tetap kuat dan tahan lama. Dengan berbagai keunggulan yang dimilikinya, seperti. Dengan mengetahui hal tersebut, anda bisa memilih konstruksi mana. ย โ gambar rangka atap baja ringan memberikan gambaran yang jelas tentang konstruksi atap ini. Rangka atap baja ringan memiliki kelebihan dalam hal kekuatan,. ย โ struktur rangka atap baja ringan.
๐ Related Articles You Might Like:
Unveiling The Truth: The Booking Blotter Of West Palm Beach, Florida The Art Of Deception: Tvrj Mugshots That Hide The Truth The Final Goodbye: Boone & Cooke Inc Funeral Home's Promise Of Dignified FarewellsSelain itu, kaso atau truss berfungsi sebagai komponen penguat tiang dan kuda. ย โ rangka atap baja ringan adalah solusi terbaik untuk konstruksi atap yang ringan namun tetap kuat dan tahan lama. Dengan berbagai keunggulan yang dimilikinya, seperti. Dengan mengetahui hal tersebut, anda bisa memilih konstruksi mana. ย โ gambar rangka atap baja ringan memberikan gambaran yang jelas tentang konstruksi atap ini. Rangka atap baja ringan memiliki kelebihan dalam hal kekuatan,. ย โ struktur rangka atap baja ringan. Struktur rangka atap baja ringan terdiri dari beberapa komponen untuk menopang atap supaya dapat berdiri dengan kokoh. ย โ atap baja ringan, bisa dibilang lebih banyak dipilih sebagai material pembangunan rumah kekinian. Sebab, baja ringan dipercaya lebih menguntungkan dari beberapa aspek. Rangka atap baja ringan kini semakin menjadi pilihan untuk membangun sebuah bangunan, seperti ruko, rumah, atau bahkan gudang. Biasanya, rangka atap baja ringan ini. ย โ dengan memahami dan mengikuti panduan perhitungan atap baja ringan ini, anda dapat memastikan konstruksi atap yang kuat, kokoh, dan tahan lama. Konstruksi atap baja ringan beserta kelebihan dan kekurangannya. Apa saja kelebihan rangka atap baja ringan? Rangka atap baja ringan telah menjadi pilihan yang populer dalam industri konstruksi modern.
๐ธ Image Gallery
ย โ gambar rangka atap baja ringan memberikan gambaran yang jelas tentang konstruksi atap ini. Rangka atap baja ringan memiliki kelebihan dalam hal kekuatan,. ย โ struktur rangka atap baja ringan. Struktur rangka atap baja ringan terdiri dari beberapa komponen untuk menopang atap supaya dapat berdiri dengan kokoh. ย โ atap baja ringan, bisa dibilang lebih banyak dipilih sebagai material pembangunan rumah kekinian. Sebab, baja ringan dipercaya lebih menguntungkan dari beberapa aspek. Rangka atap baja ringan kini semakin menjadi pilihan untuk membangun sebuah bangunan, seperti ruko, rumah, atau bahkan gudang. Biasanya, rangka atap baja ringan ini. ย โ dengan memahami dan mengikuti panduan perhitungan atap baja ringan ini, anda dapat memastikan konstruksi atap yang kuat, kokoh, dan tahan lama. Konstruksi atap baja ringan beserta kelebihan dan kekurangannya. Apa saja kelebihan rangka atap baja ringan? Rangka atap baja ringan telah menjadi pilihan yang populer dalam industri konstruksi modern. Kelebihannya yang ringan, kuat, dan mudah dipasang membuatnya. ย โ apa itu rangka atap baja ringan? Konstruksi rangka baja merujuk pada metode bangunan yang memanfaatkan penopang dari bahan baja untuk membentuk struktur. ย โ struktur atap baja ringan memiliki berbagai elemen, dimana fungsinya bukan hanya sebagai pemberi bentuk atap. Melainkan juga untuk menopang seluruh beban di. ย โ artikel ini menjelaskan definisi, keunggulan, dan manfaat struktur atap baja ringan, yaitu sistem konstruksi atap yang terdiri dari rangka baja yang dipasang dengan baut dan.
ย โ atap baja ringan, bisa dibilang lebih banyak dipilih sebagai material pembangunan rumah kekinian. Sebab, baja ringan dipercaya lebih menguntungkan dari beberapa aspek. Rangka atap baja ringan kini semakin menjadi pilihan untuk membangun sebuah bangunan, seperti ruko, rumah, atau bahkan gudang. Biasanya, rangka atap baja ringan ini. ย โ dengan memahami dan mengikuti panduan perhitungan atap baja ringan ini, anda dapat memastikan konstruksi atap yang kuat, kokoh, dan tahan lama. Konstruksi atap baja ringan beserta kelebihan dan kekurangannya. Apa saja kelebihan rangka atap baja ringan? Rangka atap baja ringan telah menjadi pilihan yang populer dalam industri konstruksi modern. Kelebihannya yang ringan, kuat, dan mudah dipasang membuatnya. ย โ apa itu rangka atap baja ringan? Konstruksi rangka baja merujuk pada metode bangunan yang memanfaatkan penopang dari bahan baja untuk membentuk struktur. ย โ struktur atap baja ringan memiliki berbagai elemen, dimana fungsinya bukan hanya sebagai pemberi bentuk atap. Melainkan juga untuk menopang seluruh beban di. ย โ artikel ini menjelaskan definisi, keunggulan, dan manfaat struktur atap baja ringan, yaitu sistem konstruksi atap yang terdiri dari rangka baja yang dipasang dengan baut dan.
๐ Continue Reading:
Hibellanicole's Guide To Mindful Living And Personal Growth Nebraska Natives And Tourists Rejoice: 511 Unlocks Nebraska's Road SecretsKonstruksi atap baja ringan beserta kelebihan dan kekurangannya. Apa saja kelebihan rangka atap baja ringan? Rangka atap baja ringan telah menjadi pilihan yang populer dalam industri konstruksi modern. Kelebihannya yang ringan, kuat, dan mudah dipasang membuatnya. ย โ apa itu rangka atap baja ringan? Konstruksi rangka baja merujuk pada metode bangunan yang memanfaatkan penopang dari bahan baja untuk membentuk struktur. ย โ struktur atap baja ringan memiliki berbagai elemen, dimana fungsinya bukan hanya sebagai pemberi bentuk atap. Melainkan juga untuk menopang seluruh beban di. ย โ artikel ini menjelaskan definisi, keunggulan, dan manfaat struktur atap baja ringan, yaitu sistem konstruksi atap yang terdiri dari rangka baja yang dipasang dengan baut dan.