8x8 Deck Plans - Jhu Innovations
11+ free floating deck plans [free] by. Have you grown tired of looking at the same backyard every day? Do you just want to do.
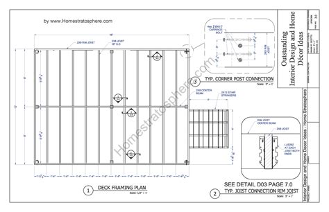
Find hundreds of deck plans for every type of housing configuration and building permit. Download your free deck plans to start building today or find a retailer for deck boards and. Freestanding decks greater than 2 feet above grade must be able to resist lateral and horizontal movement by providing diagonal bracing. Screen and timber porch addition. Basic deck building explained in less than three minutes. How to build an 8 x10 deck for beginners. How to build a covered floating deck.
Basic deck building explained in less than three minutes. How to build an 8 x10 deck for beginners. How to build a covered floating deck. Building a covered floating deck combines the elegance of open outdoor living with the comfort of shade. It’s an inviting space where you can. This is a digital product containing a pdf file about how to build a simple 8x8 deck. The diy wood plans are detailed and come with step by step 3d diagrams, instructions and a full cut. Pretty basic, a square frame with 2x6s, this one is 8x8. We used 2x4s to cover it just because they were cheaper, but generally one would use 5/4 x 6s. This deck features a basic and an elegant design at the same time. 1 pdf file with full plans, full cut and shopping lists!you can build this deck in just a few days as a diy project, because you. Learn the steps of building an 8x8 deck, from planning and materials to construction and finishing.
🔗 Related Articles You Might Like:
Houston's Mesothelioma Nightmare: Lawyer Vimeo Uncovers Corporate Greed Nebraska: The GPS Game-Changer For Exploring The Cornhusker State Unlock The Mystery Of Your Child's Progress: Volusia Parent Portal DecipheredThis is a digital product containing a pdf file about how to build a simple 8x8 deck. The diy wood plans are detailed and come with step by step 3d diagrams, instructions and a full cut. Pretty basic, a square frame with 2x6s, this one is 8x8. We used 2x4s to cover it just because they were cheaper, but generally one would use 5/4 x 6s. This deck features a basic and an elegant design at the same time. 1 pdf file with full plans, full cut and shopping lists!you can build this deck in just a few days as a diy project, because you. Learn the steps of building an 8x8 deck, from planning and materials to construction and finishing. Find out the advantages and disadvantages of wood, composite,. Deck plans we’ve got customizable designs on deck. Browse our collection of inspiring deck plans to ignite your creativity and jumpstart the design of your ideal outdoor living space. A floating deck is built directly on the ground,. A great deck starts with a great deck plan. Get inspired with our curated deck plans. Simply select the dimensions that best suit your space and immerse yourself in the. 8×8 pergola plans, diy project. These plans include a free pdf download (link at bottom of blog post), drawings, measurements, cutting list, and a shopping list.
📸 Image Gallery
This deck features a basic and an elegant design at the same time. 1 pdf file with full plans, full cut and shopping lists!you can build this deck in just a few days as a diy project, because you. Learn the steps of building an 8x8 deck, from planning and materials to construction and finishing. Find out the advantages and disadvantages of wood, composite,. Deck plans we’ve got customizable designs on deck. Browse our collection of inspiring deck plans to ignite your creativity and jumpstart the design of your ideal outdoor living space. A floating deck is built directly on the ground,. A great deck starts with a great deck plan. Get inspired with our curated deck plans. Simply select the dimensions that best suit your space and immerse yourself in the. 8×8 pergola plans, diy project. These plans include a free pdf download (link at bottom of blog post), drawings, measurements, cutting list, and a shopping list. Pictures from these plans. With a helper and all the materials ready to go first thing in the morning, you can have a. How to build a 8×8 deck from 2x4s. This is a simple deck so you can create a nice relaxation area in your yard. This deck is sturdy, easy to build and you can get the job.
Deck plans we’ve got customizable designs on deck. Browse our collection of inspiring deck plans to ignite your creativity and jumpstart the design of your ideal outdoor living space. A floating deck is built directly on the ground,. A great deck starts with a great deck plan. Get inspired with our curated deck plans. Simply select the dimensions that best suit your space and immerse yourself in the. 8×8 pergola plans, diy project. These plans include a free pdf download (link at bottom of blog post), drawings, measurements, cutting list, and a shopping list. Pictures from these plans. With a helper and all the materials ready to go first thing in the morning, you can have a. How to build a 8×8 deck from 2x4s. This is a simple deck so you can create a nice relaxation area in your yard. This deck is sturdy, easy to build and you can get the job.
📖 Continue Reading:
How Labcorp Link Can Help You Reach More Patients With Less Effort LenConnect: The Key To Unlocking Limitless Business Opportunities In The Digital EraSimply select the dimensions that best suit your space and immerse yourself in the. 8×8 pergola plans, diy project. These plans include a free pdf download (link at bottom of blog post), drawings, measurements, cutting list, and a shopping list. Pictures from these plans. With a helper and all the materials ready to go first thing in the morning, you can have a. How to build a 8×8 deck from 2x4s. This is a simple deck so you can create a nice relaxation area in your yard. This deck is sturdy, easy to build and you can get the job.